7768 S Cherokee TrailCentennial, CO 80016




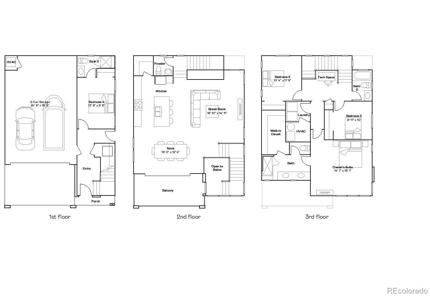
***Contact builder today about Special Financing for this home - terms and conditions apply** Anticipated Completion November 2025!! This stunning Horizon 3-story in the brand new Vermilion community is on a corner homesite offering added privacy & natural light and features 4 beds (3 upper / 1 lower), 3.5 baths, tech space, great room, kitchen, 2 car garage and crawlspace. Gorgeous finishes and upgrades throughout including luxury vinyl plank flooring, stainless steel appliances, front balcony low maintenance backyard space and more. This builder provides the latest in energy efficiency and state of the art technology with several fabulous floorplans to choose from. Energy efficiency, and technology/connectivity seamlessly blended with luxury to make your new house a home. Vermilion offers single family homes for every lifestyle.Close to dining, shopping, entertainment and other amenities. Photos are model only and subject to change. Association fee subject to change. Washer, dryer, whole home blinds included with this home. Photos and the Matterport 3D tour are of a model home and are provided for illustrative purposes only. Features, finishes, and layout may vary and are subject to change. This home includes washer, dryer and whole home blinds.
6 days ago | Listing updated with changes from the MLS® | |
6 days ago | Listing first seen on site |

The content relating to real estate for sale in this Web site comes in part from the Internet Data eXchange ("IDX") program of METROLIST, INC., DBA RECOLORADO real estate listings held by brokers other than RE/MAX Professionals are marked with the IDX Logo. This information is being provided for the consumers' personal, non-commercial use and may not be used for any other purpose. All information subject to change and should be independently verified.
Did you know? You can invite friends and family to your search. They can join your search, rate and discuss listings with you.