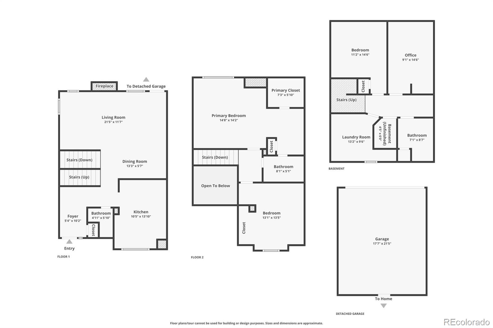
5264 S Jellison StreetLittleton, CO 80123




Welcome to this beautifully updated 3-bedroom, 3-bath end unit townhome, perfectly situated in a quiet neighborhood known for its friendly dog walkers. Enjoy the convenience of walking to King Soopers and other local shops. Step inside this beautifully updated townhome, where every corner exudes warmth and charm. The open-concept design effortlessly blends the updated kitchen, dining, and living areas, with the living room’s focal point fireplace creating a space that is perfect for both cozy family gatherings and entertaining. The end unit design incorporates natural light and views of the outdoors fostering a connection with nature that is inherently calming and restorative. Cozy up with your favorite book on the window seat nook. Upstairs you will find an oversized Primary bedroom shaded by a mature tree helping to keep it cool in the summer months with a walk-in closet and extra closet for storage it is connected to an updated full sized bathroom. The second bedroom is spacious. The finished basement offers another large bedroom and a 3/4 bath, providing additional space for guests or family, with privacy, creating a comfortable space that doesn’t feel like a basement. An additional basement room is great for storage, playroom or craft room you decide. Laundry day is a breeze in the finished laundry room, complete with a freezer. This home features a detached 2-car garage that opens to the private patio, giving you a direct path to your back door. The patio is ideal for relaxation and entertaining and provides a peaceful outdoor space for unwinding, surrounded by nature.The home boasts bamboo and laminate flooring throughout, with cozy carpet only on the stairs, Anderson double-hung windows and a complete update, this home is move-in ready! The private community pool and activity court add to the amenities offered with this home, enjoy the best location for quick access to the mountains, shopping, and dining. Don’t miss out on this incredible opportunity!
yesterday | Listing updated with changes from the MLS® | |
yesterday | Status changed to Active | |
5 days ago | Listing first seen on site |

The content relating to real estate for sale in this Web site comes in part from the Internet Data eXchange ("IDX") program of METROLIST, INC., DBA RECOLORADO real estate listings held by brokers other than Berkshire Hathaway HomeServices Colorado, LLC - Highlands Ranch Real Estate are marked with the IDX Logo. This information is being provided for the consumers' personal, non-commercial use and may not be used for any other purpose. All information subject to change and should be independently verified.
Did you know? You can invite friends and family to your search. They can join your search, rate and discuss listings with you.